Appartamenti di nuova costruzione a partire da 190.000€

AndriaCentro - Ospedale - Appartamento in vendita
190.000 €
Caratteristiche principali
70 m²
Superficie
3
Locali
1
Bagni
Descrizione
Proponiamo in vendita appartamenti di nuova costruzione, in fase di completamento, situati in una delle zone più richieste e apprezzate della città, precisamente in Via Milite Ignoto.

Soluzioni ideali per chi è alla ricerca di una residenza moderna, luminosa e funzionale, in posizione strategica, a breve distanza dal centro e nelle immediate vicinanze di spazi verdi, perfette sia come prima abitazione sia come investimento di valore.

Le ultime disponibilità riguardano appartamenti angolari, caratterizzati da grande luminosità e ottima vivibilità. Le diverse soluzioni presentano metrature e distribuzioni differenti, tutte dotate di balconi vivibili, pensati come naturale estensione degli spazi interni.

Gli immobili sono rifiniti con materiali di qualità, con particolare attenzione ai dettagli, al comfort abitativo e alla qualità costruttiva.

Disponibilità attuali:
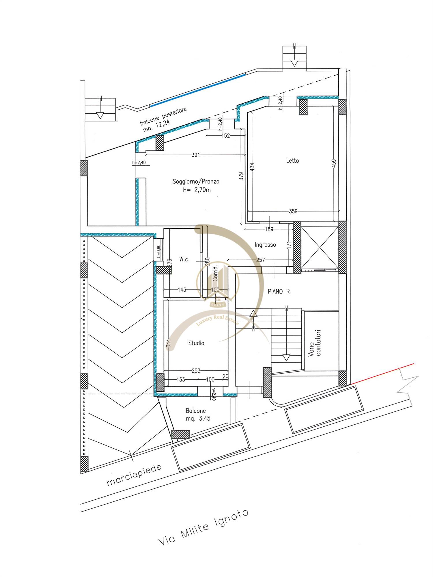
Piano rialzato di circa 70 mq interni
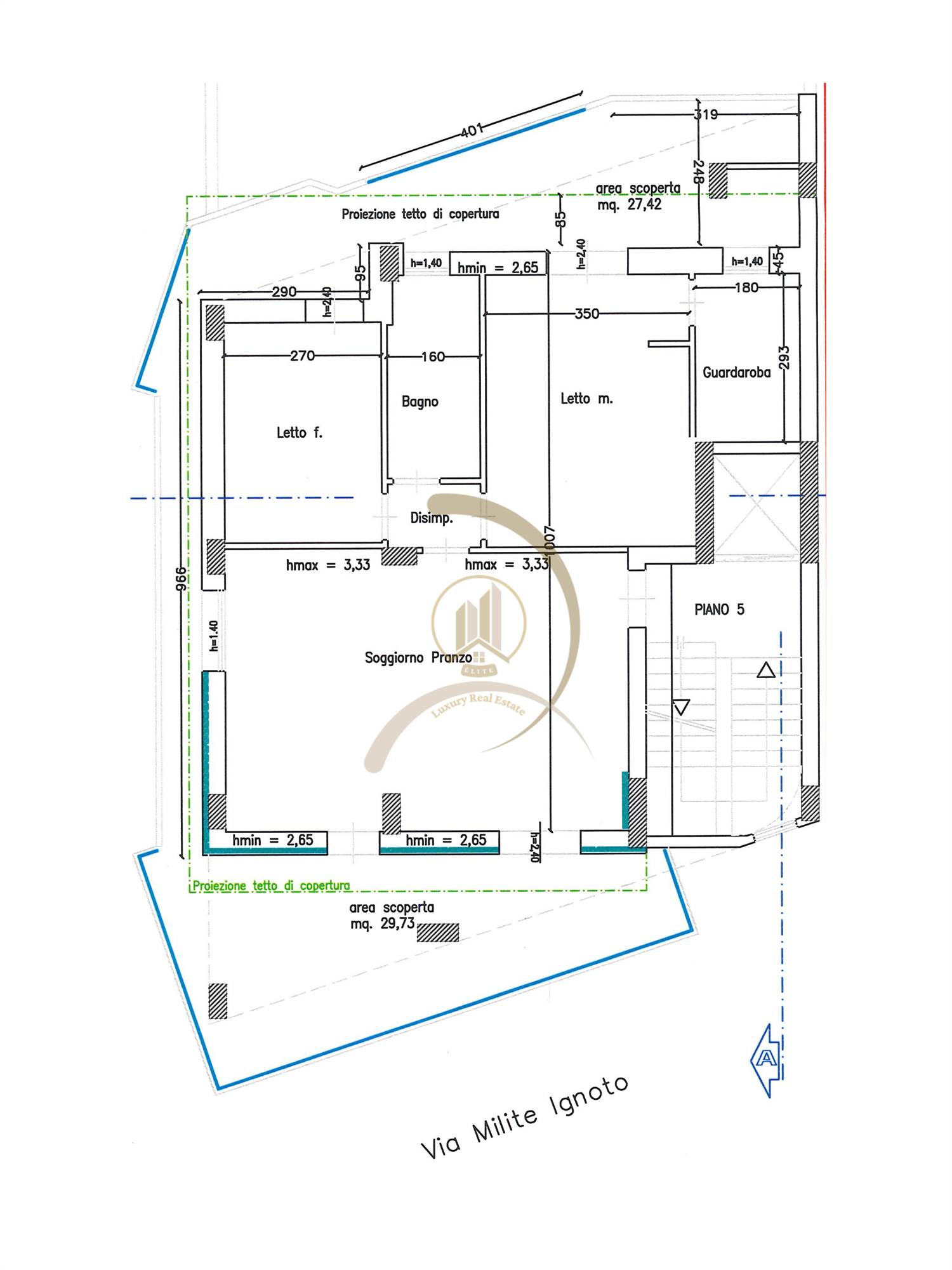
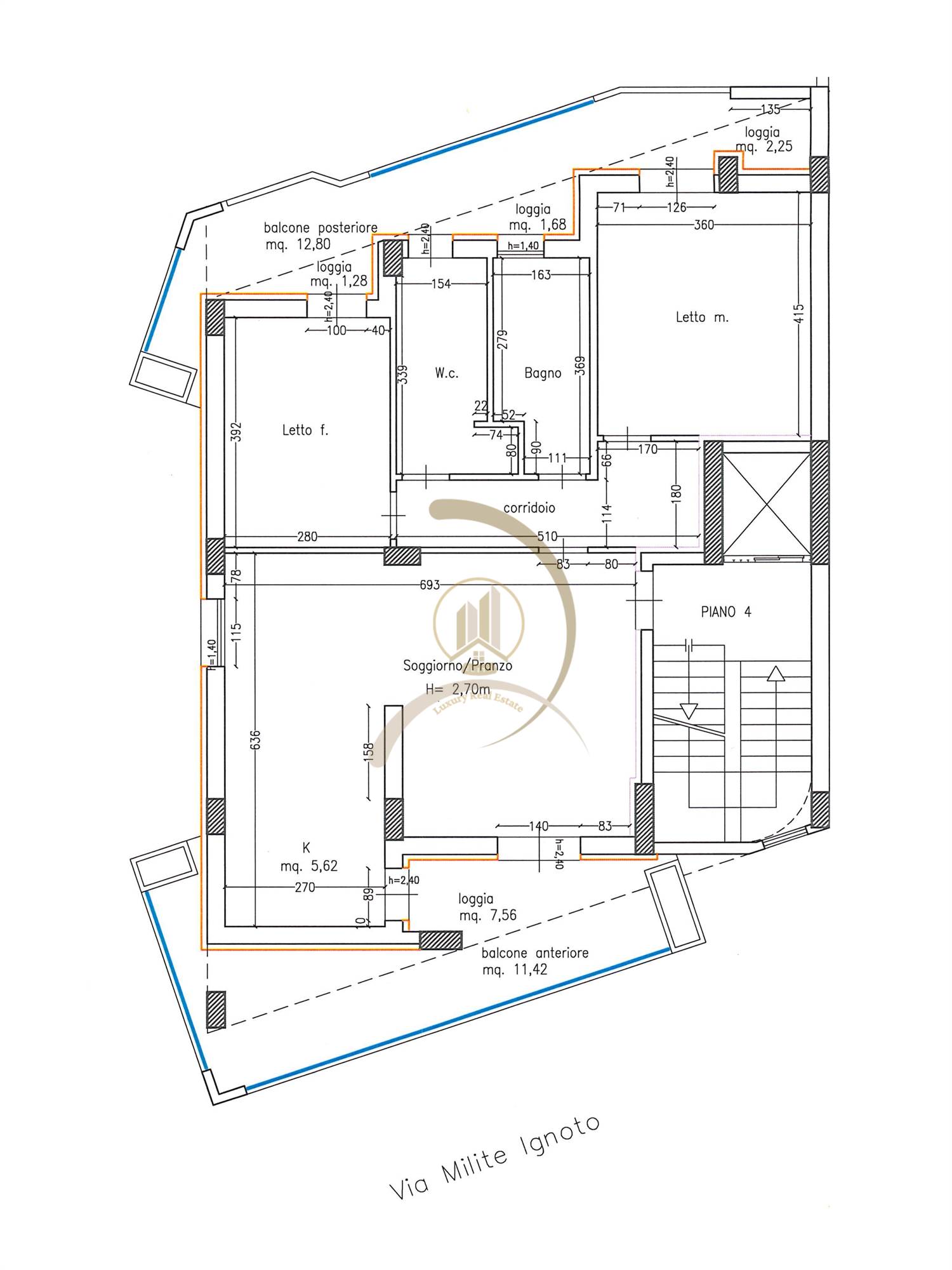
Quarto piano di circa 95 mq interni
Quinto piano di circa 85 mq interni
Tutte le unità sono realizzate in classe energetica A4 e dotate di box auto.

PREZZO A PARTIRE DA 190.000€

Caratteristiche
Codice:
V000064
Città:
Andria (Centro - Ospedale )
Categoria:
Appartamento
Locali:
3
Bagni:
1
Mq:
70
Classe energetica:
A4
Stato Immobile:
In Costruzione
Grado:
Medio
Posizione:
Centro
Tipo Soggiorno:
Soggiorno
Tipo Cucina:
A Vista
Accessori
Ascensore
Mappa
Via Milite Ignoto - Andria (BT)
QR Code
QR Code
Cookie preference